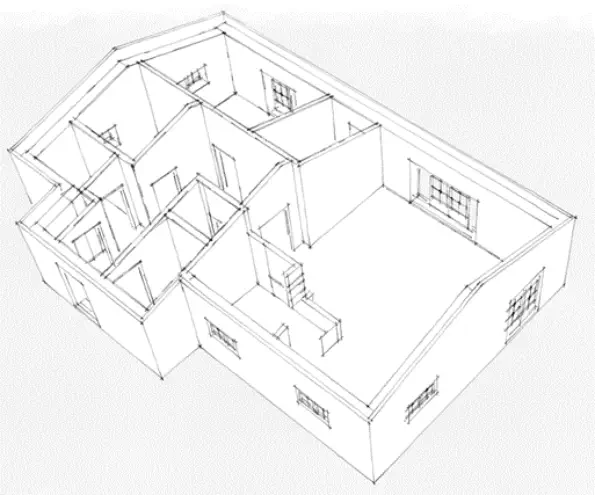
Plan house shape After the investigation of the kinds of natural insulation and energy, I have designed a lot of possible houses. When the plan will be executed, our children will left our house. The advantage of a drawing program is that you can look at the sketch in 3D. The first wish was that it has only ground floor. Of course there are the basic elements such as a toilet, bathroom, bedroom, kitchen, dining room and living room. The next wish was to face the living in the direction of the garden and to the south. Shape exterior I started with a square house (100 m 2 ), but it was not excepted by my wife. It was to cramped. Then I created a L-shape house (113,5 m 2 ). But the roof parts were not esthetic nor in balance and the living space did not seem to fit to each other. It looked too disorganized. Next I created a rectangle shape (110 m 2 ). The roof became an easy construction but it had two advantages: 1, It was easy to collect the water and 2, I could easily change the shape for a roofed terrace. The wish of my wife. The last hurdle was that in all of the concepts, the hall was a sort of stumbling block. I placed a part of one of the walls a bit outside. Next to the shape of the roof, it gives the house (119,5 m 2 ) more character. The shape was born. Shape interior The shape of the interior is given for a part of the kind of room. So every room I cut in scale a model out of a piece of paper and as a puzzle I placed it in the shape of the house. Also the kitchen, dining room and living room are close to each other. The same is for the bathroom and the bedroom. I could slide the expansion because the hall had not a definite location. The interior was born. All sides and floor plan After many trials, the shape of the house was born. All ideas of personal wishes and experiences from the past and present home, we try to fulfill in the new home. With the measures of furniture and space of different rooms, you imagine a picture of the future home. Thereby you hope that you cover the mistakes in all the houses we lived in the past. But also by watching television programs of moving and/or building homes and their experiences. Will it be perfect? No, but at least your mind is crossing the picture and creation and hope not to make to big mistakes. In the next slides, the creation is more worked out. Now you have an idea, the next step will be the inside. We have to think of the water, the electricity, the heat and the air.
articles
Green Fluid Art 4 Studio
prev
next